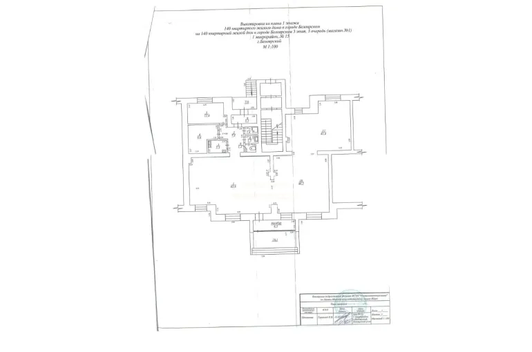
Торговое помещение 189 кв.м г.Белоярский
| Населенный пункт | Белоярский |
|---|---|
| Улица | улица 1 Микрорайон |
| Номер дома | 15 |
Описание
ПРОДАЖА БЕЗ КОМИССИИ!
Продается просторное торговое помещение площадью 189 кв.м, расположенное на 1 этаже 5-этажного жилого дома. Стоимость объекта – 10 700 000 руб.
- Первая линия, отдельный вход с улицы
- Открытая планировка
- Чистовая офисная отделка
- Высота потолков – 2,8 м
- Есть все коммуникации: водопровод, канализация, электричество, центральное отопление
- Система кондиционирования
- Парковка на улице
- Помещение с арендатором: "Юридическая организация"
Помещение идеально подходит для организации магазина, офиса, салона, сферы услуг. Активный пешеходный и автомобильный трафик, отличная видимость с главной улицы.
Подписывайтесь на наш аккаунт, чтобы первыми узнавать о новых выгодных предложениях!
| Сведения о недвижимости | |
|---|---|
| ID | 17158 |
| Коммунальные услуги включены | Нет |
| Тип здания | Жилой дом |
| Тип парковки | На улице |
| Вход cian (avito) | Отдельный с улицы |
| Отделка помещения коммерческая | Офисная |
| Залог (avito) | 1 месяц |
| Тип коммерческой | Торговое помещение |
| Площадь, кв.м. | 189 |
| Этаж | 1 |
| Этажность | 5 |
| Высота потолков м. | 2.8 |
| Отопление - коммерческая avito | Центральное |
| Стоимость | 10 700 000 руб. |









