Торговое помещение ул.Володарского 60
| Населенный пункт | Тюмень |
|---|---|
| Район города | Центральный |
| Улица | улица Володарского |
| Номер дома | 60 |
Описание
БЕЗ КОМИССИИ ДЛЯ АРЕНДАТОРА!
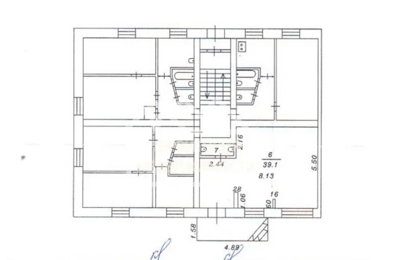
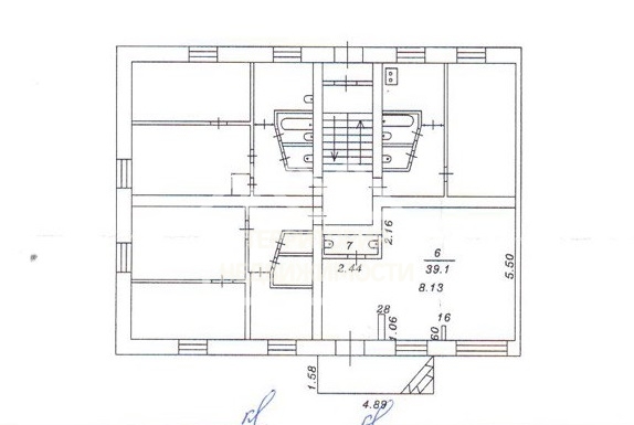
Сдается торговое помещение площадью 42 м² на 1 этаже 5-этажного жилого дома. Первая линия домов, отдельный вход с улицы.
Это пересечение улиц Володарского60/Профсоюзная 86
- Арендная ставка: 65 000 ₽/мес.
- Высота потолков: 2,7 м
- Планировка: открытая
- Отделка: косметический ремонт (офисный стиль)
- Отопление: центральное
- Водопровод и канализация: есть (мокрая точка)
- Электроснабжение: есть
- Парковка: на улице у здания
Коммунальные платежи оплачиваются отдельно, предусмотрен ОБЕСПЕЧИТЕЛЬНЫЙ ПЛАТЕЖ.
Подписывайтесь на аккаунт, чтобы быть в курсе новых предложений.
Возможно, вы нашли меня по таким запросам как: помещение свободного назначения, снять помещение свободного назначения, помещение свободного назначения в аренду, снять ПСН, ПСН, снять помещение в аренду, коммерческая недвижимость аренда, снять коммерческое помещение, снять торговое помещение, торговое помещение первая линия, снять торговую площадь, торговая площадь, помещение с мокрой точкой, помещение мокрая точка, помещение под магазин, торговая точка, помещение под торговлю в аренду, снять помещение в аренду, помещение свободного назначения, снять помещение свободного назначения, помещение свободного назначения в аренду
| Сведения о недвижимости | |
|---|---|
| ID | 17376 |
| Коммунальные услуги включены | Нет |
| Тип здания | Жилой дом |
| Тип парковки | На улице |
| Вход cian (avito) | Отдельный с улицы |
| Отделка помещения коммерческая | Офисная |
| Залог (avito) | 1 месяц |
| Тип коммерческой | Торговое помещение |
| Площадь, кв.м. | 42 |
| Этаж | 1 |
| Этажность | 5 |
| Высота потолков м. | 2.7 |
| Отопление - коммерческая avito | Центральное |
| Стоимость | 65 000 руб. |









