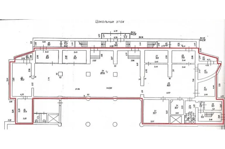
Помещение свободного назначения 557м2 ул.Володарского 26
| Населенный пункт | Тюмень |
|---|---|
| Район города | Центральный |
| Улица | улица Володарского |
| Номер дома | 26 |
Описание
АРЕНДА БЕЗ КОМИССИИ!
Расположение и характеристики объекта:
- Центральный округ, исторический центр города
- 1 линия, пересечение улиц Володарского - Челюскинцев
- Большой пешеходный и автомобильный трафик
- Парковка на 28 машиномест перед зданием
- 3-уровневое здание
- Цокольное помещение
- Общая площадь 557кв.м
- Высота потолка 3 м
- Выделенная мощность 250 кВт (независимое подключение от ТП по II категории надёжности)
- Автономная система водоснабжения и водоотведения
- Вентиляция приточная с системой центрального кондиционирования
- Охранно-пожарная система.
- Санузел имеется
- Деление площадей возможно
- Коммунальные оплачиваются отдельно
Если Вас заинтересовал объект, перезвоните нам и мы организуем просмотр!
| Сведения о недвижимости | |
|---|---|
| ID | 72 |
| Коммунальные услуги включены | Нет |
| Тип коммерческой | Помещение свободного назначения |
| Площадь, кв.м. | 557 |
| Этаж | -1 |
| Этажность | 7 |
| Высота потолков м. | 3 |
| Стоимость | 557 000 руб. |











