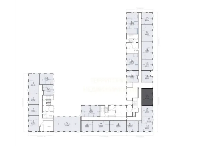
Помещение свободного назначения 61,61 ул.Николая Глебова 2 к1
| Населенный пункт | Тюмень |
|---|---|
| Район города | Калининский |
| Улица | улица Николая Глебова |
| Номер дома | 2к1 |
Описание
ПРОДАЖА БЕЗ КОМИССИИ!!!
Помещение свободного назначения площадью 61,61 кв.м Квартал из шести домов в новом активно развивающемся районе Комарово Парк рядом с коттеджными застройками: Дударева и Комарово
Более 500 семей уже получили ключи от своих квартир. В строящихся и спроектированных домах квартиры рассчитаны на более чем 1 000 семей
Комарово Парк — самый масштабный жилой район в городе, его территория составляет 315 га, а планируемое население — 47 000 жителей. Квартал расположен рядом с центральной улицей Фармана Салманова, на которую выходит большая часть коммерческих помещений.
- Входная группа с первой линии
- Отдельный вход у каждого помещения
- Витражное остекление
- Свободная планировка, улучшенная черновая отделка
- Выделена зона под санузел и проведены коммуникации
- Мощность электроэнергии 12 кВт
- Приборы учета воды, тепла, электроэнергии
- Высота потолков 3,73м
- Удобная парковочная зона со свободным доступом
Прилегающая территория к домам — благоустроенный пешеходный бульвар с площадками для отдыха. В данной локации планируется построить 5 общеобразовательных школ, 8 детских садов, поликлинику и мультифункциональный центр, что будет обеспечивать большой пешеходный трафик.
В районе ведется активная застройка: сразу несколько застройщиков возводят свои жилые комплексы. Уже введено в эксплуатацию 4 дома, куда переехали более 1385 семей. Рядом строится 30 домов на 6 210 семей.
Уже работают: - Пункты выдачи Ozon и Wildberries - Сетевой магазин «Магнит» - Стоматология - Пункт приема химчистки
Срок сдачи IV квартал 2026года
| Сведения о недвижимости | |
|---|---|
| ID | 17312 |
| Тип здания | Жилой дом |
| Вход cian (avito) | Отдельный с улицы |
| Отделка помещения коммерческая | Без отделки |
| Ремонт коммерческая | черновая отделка |
| Мощность электросети, в кВт | 16 |
| Тип коммерческой | Помещение свободного назначения |
| Площадь, кв.м. | 61.61 |
| Этаж | 1 |
| Этажность | 17 |
| Высота потолков м. | 3.73 |
| Отопление - коммерческая avito | Центральное |
| Стоимость | 13 554 000 руб. |
Стоимость - 13 554 000 руб.
Цена кв.м. - 219 997 руб.
Похожие предложения
ID 17313






