Торговое помещение 132.2 м² в ЖК "Озёрный парк"
| Населенный пункт | Тюмень | 
|---|---|
| Район города | Калининский | 
| Улица | улица Полевая | 
| Номер дома | 117к4 | 
Описание
АРЕНДА БЕЗ КОМИССИИ!
Характеристики и расположение объекта:
- Калининский округ. ЖК "Озёрный парк"
- Бесплатная парковка
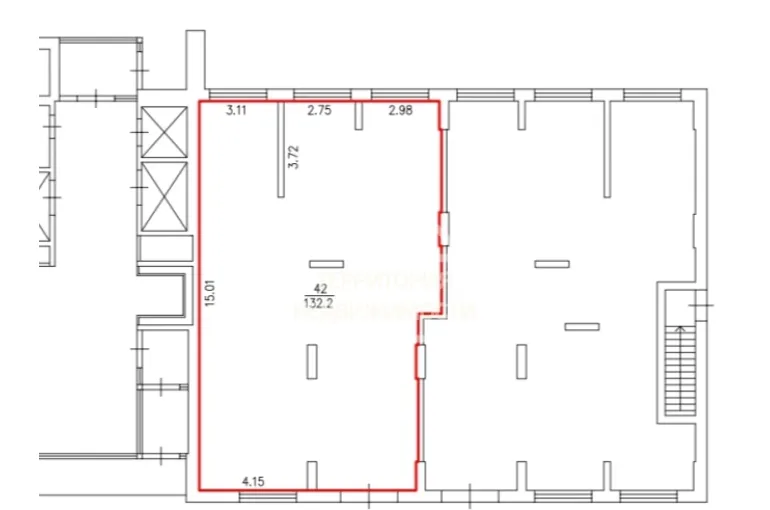
- Помещение свободного назначения 132.2 кв.м (Возможно увеличение площади на 140 кв.м.)
- 1 этаж
- высота потолков 3.7 м
- удобная планировка
- Черновая отделка
- Коммунальные платежи оплачиваются отдельно
- ОБЕСПЕЧИТЕЛЬНЫЙ ПЛАТЕЖ
Вам понравилось помещение и хотите его посмотреть?Звоните!
| Сведения о недвижимости | |
|---|---|
| ID | 15656 | 
| Коммунальные услуги включены | Нет | 
| Тип здания | Жилой дом | 
| Тип парковки | На улице | 
| Вход cian (avito) | Отдельный с улицы | 
| Отделка помещения коммерческая | Без отделки | 
| Залог (avito) | 1 месяц | 
| Ремонт коммерческая | черновая отделка | 
| Тип коммерческой | Торговое помещение | 
| Площадь, кв.м. | 132.2 | 
| Этаж | 1 | 
| Этажность | 24 | 
| Высота потолков м. | 3.7 | 
| Стоимость | 158 640 руб. | 






 
								 
								 
								