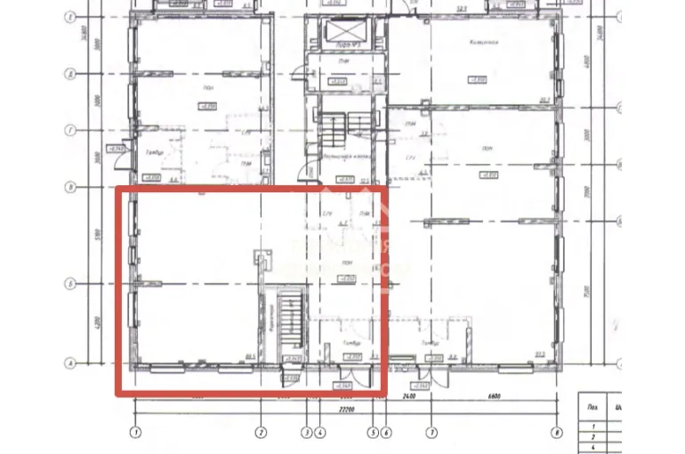
Торговое помещение 105,2 м² в ЖК "Озёрный парк"
| Населенный пункт | Тюмень |
|---|---|
| Район города | Калининский |
| Улица | улица Полевая |
| Номер дома | 117к7 |
Описание
АРЕНДА БЕЗ КОМИССИИ!
Характеристики и расположение объекта:
- Калининский округ. ЖК "Озёрный парк"
- Бесплатная парковка
- Помещение свободного назначения 105,2 кв.м
- 1я линия с ул.Комбинатская
- 1 этаж
- высота потолков 3.7 м
- удобная планировка
- помещение с ремонтом
- Коммунальные платежи оплачиваются отдельно
- ОБЕСПЕЧИТЕЛЬНЫЙ ПЛАТЕЖ
Вам понравилось помещение и хотите его посмотреть?Звоните!
| Сведения о недвижимости | |
|---|---|
| ID | 15551 |
| Коммунальные услуги включены | Нет |
| Тип здания | Жилой дом |
| Тип парковки | На улице |
| Вход cian (avito) | Отдельный с улицы |
| Отделка помещения коммерческая | Офисная |
| Залог (avito) | 1 месяц |
| Ремонт коммерческая | с отделкой |
| Тип коммерческой | Торговое помещение |
| Площадь, кв.м. | 105.2 |
| Этаж | 1 |
| Этажность | 24 |
| Высота потолков м. | 3.7 |
| Стоимость | 126 000 руб. |



















