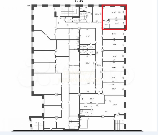
Офисное помещение 34,3м2 ул.Комсомольская 57
| Населенный пункт | Тюмень |
|---|---|
| Район города | Центральный |
| Улица | улица Комсомольская |
| Номер дома | 57 |
Описание
БЕЗ КОМИССИИ ДЛЯ АРЕНДАТОРА!
Офис 34,3 м² в бизнес-центре, 3/4 этаж
Стоимость: 51 450 ₽ в месяц
Коммунальные платежи включены, предусмотрен ОБЕСПЕЧИТЕЛЬНЫЙ ПЛАТЕЖ.
- Кабинетная планировка
- Высота потолков: 3 м
- Хороший офисный ремонт, готов к въезду
- Вентиляция и кондиционирование
- Центральное отопление
- Водопровод, канализация, электричество
- Первая линия, общий вход с улицы, 1 входная группа
- Парковка у здания: 34 машиноместа (уличная)
Здание: современный бизнес-центр, 3 этаж из 4.
Готов оперативно организовать показ. Пишите в сообщениях для уточнения деталей и бронирования просмотра.
Подписывайтесь на наш аккаунт, чтобы не пропустить новые предложения!
| Сведения о недвижимости | |
|---|---|
| ID | 17276 |
| Коммунальные услуги включены | Да |
| Тип здания | Бизнес-центр |
| Тип парковки | На улице |
| Вход cian (avito) | Общий с улицы |
| Отделка помещения коммерческая | Офисная |
| Залог (avito) | 1 месяц |
| Ремонт коммерческая | хороший |
| Тип коммерческой | Офисное помещение |
| Площадь, кв.м. | 34.3 |
| Этаж | 3 |
| Этажность | 4 |
| Высота потолков м. | 3 |
| Отопление - коммерческая avito | Центральное |
| Стоимость | 51 450 руб. |












