Офис с надежным арендатором и быстрой окупаемостью!
| Населенный пункт | Тюмень |
|---|---|
| Район города | Центральный |
| Улица | улица Осипенко |
| Номер дома | 79 |
Описание
Пpoдажа coвpеменного офиcа в бизнeс-цeнтpе с нaдежным фeдеpaльным apeндаторoм и выcoкoй oкупаeмocтью.
Аpeндатoр — лидирующий обpазовaтeльный цeнтp «Sky.pro», часть компaнии Skyеng — одногo из крупнeйших oнлaйн-унивeрcитетoв Pоccии. «Sky.pro» помoгает cтудентам оcваивать пpoфeсcии будущeгo и строить успешную карьеру. Надежный арендатор с долгосрочной перспективой.
Арендная ставка — 205 250 ₽/месяц или 2 463 000 ₽/год
Окупаемость — всего 8,5 лет без учета индексации
Индексация — 7% в год, это гарантированный рост дохода. Коммунальные услуги оплачивает арендатор отдельно. Договор аренды — на 11 месяцев с возможностью пролонгации.
Преимущества объекта
- Расположение — 4 этаж отдельно стоящего торгово-офисного комплекса в деловом центре города, на оживленном перекрестке Профсоюзная — 50 лет Октября
- Современные инженерные системы: высокие потолки (до 3,9 м до плиты), витражное остекление, приточно-вытяжная вентиляция, кондиционирование
- Легкий доступ — лифт, лестница, эскалатор
- Стильный дизайн зон общего пользования — лаунж зона, кофейная зона, настольный футбол для отдыха сотрудников
- Развитая инфраструктура: парковка, остановки общественного транспорта, рядом крупные сетевые арендаторы — фитнес-клубы, супермаркеты, аптеки, офисы нефтяных компаний и многое другое
Готовы показать помещение в любое удобное для вас время! Полное юридическое сопровождение сделки — на высшем уровне.
Свяжитесь с нами сегодня! Не упустите шанс стать владельцем доходной недвижимости в престижном районе города.
Собственник — оперативное решение для вашей инвестиции!
ВАЖНО! СПЕЦ.ЦЕНА ДО КОНЦА СЕНТЯБРЯ 2025!
| Сведения о недвижимости | |
|---|---|
| ID | 17195 |
| Тип здания | Торговый центр |
| Тип парковки | На улице |
| Вход cian (avito) | Общий с улицы |
| Отделка помещения коммерческая | Офисная |
| Тип коммерческой | Офисное помещение |
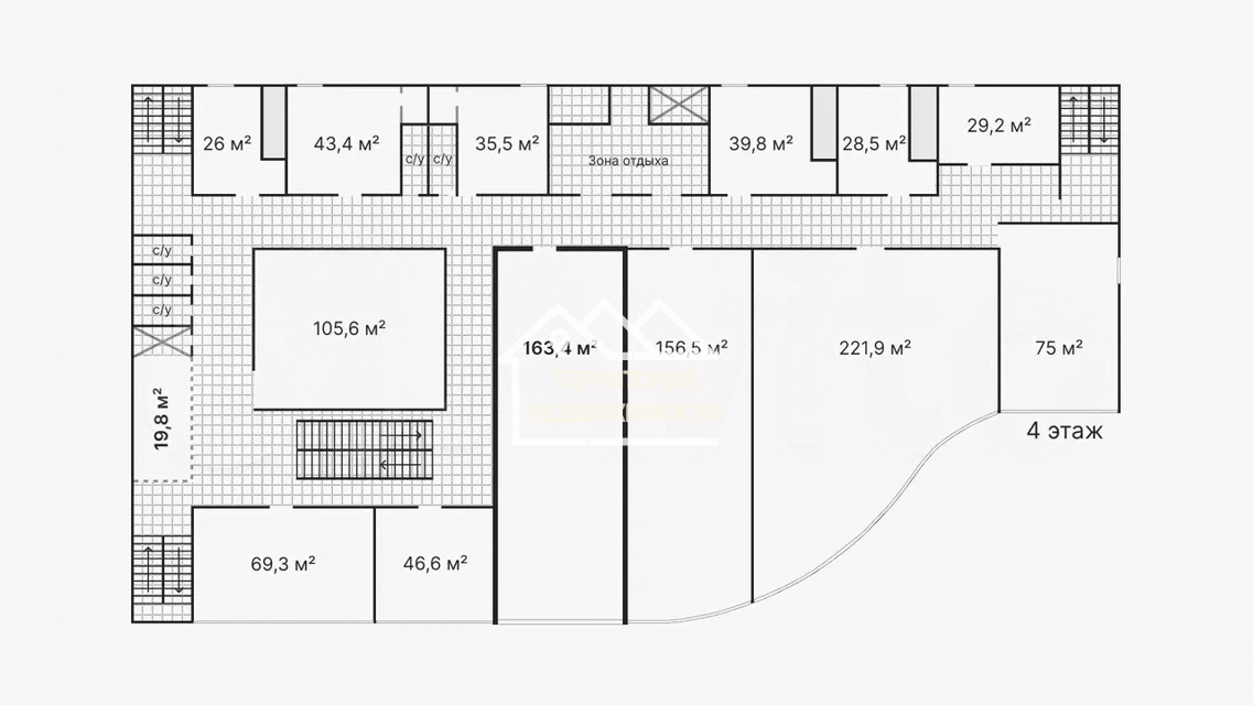
| Площадь, кв.м. | 163.4 |
| Этаж | 4 |
| Этажность | 5 |
| Высота потолков м. | 3.9 |
| Стоимость | 20 990 000 руб. |










