Помещение свободного назначения ул. Республики 253а
| Населенный пункт | Тюмень |
|---|---|
| Район города | Ленинский округ |
| Улица | улица Республики |
| Номер дома | 253а |
Описание
❗❗❗ВНИМАНИЕ РЕКОНСТРУКЦИЯ ОБЪЕКТА! АРЕНДА БЕЗ КОМИССИИ!❗❗❗
Расположение и характеристики объекта:
- Ленинский округ,пос.Рабочий
- В 80 м остановка общественного транспорта
- Наличие парковки перед зданием
- 1 линия
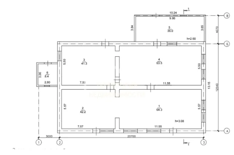
- Общая площадь 330 кв.м.
- 3 входа (2 с первой линии+разгрузка)
- Готовы рассматривать заявки от арендаторов
- ЕСТЬ ВОЗМОЖНОСТЬ СДЕЛАТЬ РЕМОНТ ПОД АРЕНДАТОРА!
- Коммунальные платежи отдельно!
Вам понравилось помещение и хотите его посмотреть? Звоните!
| Сведения о недвижимости | |
|---|---|
| ID | 16937 |
| Коммунальные услуги включены | Нет |
| Тип здания | Административное здание |
| Тип парковки | На улице |
| Вход cian (avito) | Отдельный с улицы |
| Отделка помещения коммерческая | Без отделки |
| Залог (avito) | 1 месяц |
| Тип коммерческой | Торговое помещение |
| Площадь, кв.м. | 330 |
| Этаж | 1 |
| Этажность | 1 |
| Отопление - коммерческая avito | Центральное |
| Стоимость | 330 000 руб. |
Стоимость - 330 000 руб.
Цена кв.м. - 1 000 руб.
Похожие предложения
ID 17545
303 600
Складское помещение 506м2 Старый Тобольский тракт, 2-ой км, 482
ID 17543
366 795
Складское помещение 564,3м2 Старый Тобольский тракт. 2-ой км, 301
ID 17531
300 000
Торговое помещение, 180 кв.м. Городской квартал "Ammonite"
ID 17524
425 000
Торговая площадь 500 кв.м. Комарово, ул.Уездная 2к1

















