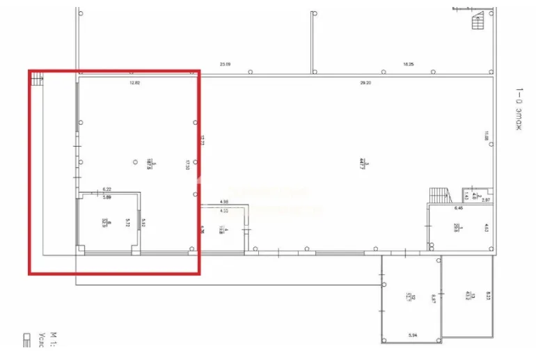
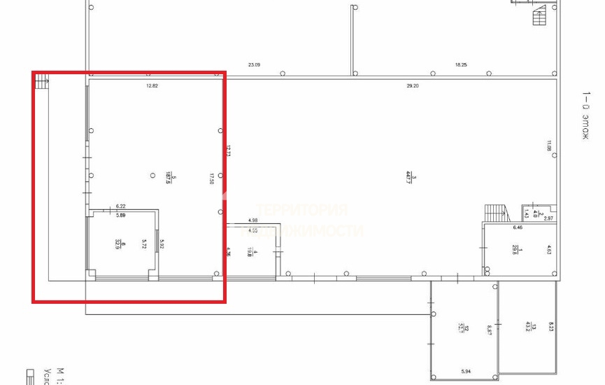
Складское помещение 220 кв.м, Дружбы 207
| Населенный пункт | Тюмень |
|---|---|
| Район города | Ленинский |
| Улица | улица Дружбы |
| Номер дома | 207 |
Описание
БЕЗ КОМИССИИ ДЛЯ АРЕНДАТОРА!
Сдается складское помещение площадью 220 м².
Арендная ставка: 154 000 ₽ в месяц.
Предусмотрен ОБЕСПЕЧИТЕЛЬНЫЙ ПЛАТЕЖ.
- Этаж: 1 из 1 (удобный доступ на уровне земли)
- Высота потолков: 6.5 м — удобно для стеллажных систем и крупногабаритного хранения
- Количество входных групп: 2
- Погрузочно-разгрузочная зона: пандус
- Коммуникации: водопровод, канализация, электричество, отопление
- Парковка: есть
- Состояние: косметический ремонт
- Коммунальные платежи оплачиваются отдельно
Помещение подходит для складского и логистического назначения, удобная организация потоков благодаря двум входным группам и наличию пандуса.
Подписывайтесь на аккаунт, чтобы быть в курсе новых предложений!
| Сведения о недвижимости | |
|---|---|
| ID | 17289 |
| Коммунальные услуги включены | Нет |
| Тип здания | складской комплекс |
| Тип парковки | На улице |
| Вход cian (avito) | Отдельный с улицы |
| Отделка помещения коммерческая | Чистовая |
| Залог (avito) | 1 месяц |
| Тип коммерческой | Складское помещение |
| Площадь, кв.м. | 220 |
| Этаж | 1 |
| Этажность | 1 |
| Высота потолков м. | 6.5 |
| Стоимость | 154 000 руб. |






