Торговое помещение 20,9кв.м ул. Герцена, 103

Торговое помещение 20,9кв.м ул. Герцена, 103


Населенный пунктТюмень
Улицаулица Герцена
Номер дома103
Описание

Аренда без комиссии!

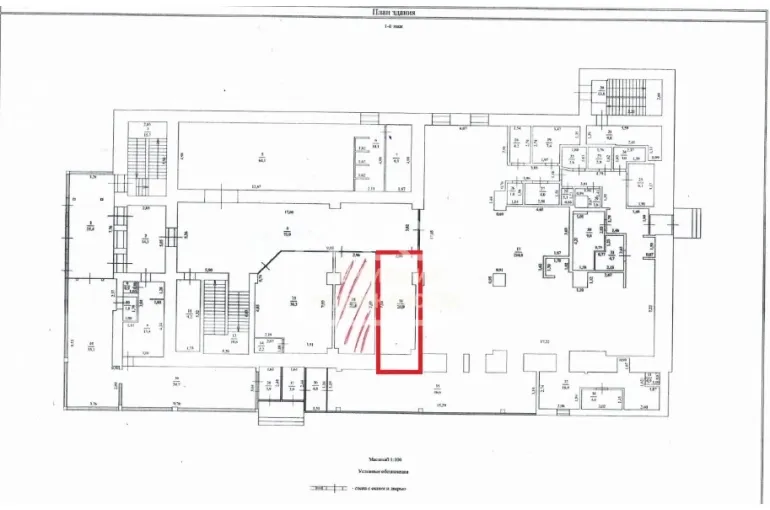
Расположение и характеристики объекта:

  • Центральный округ
  • Первая линия ул. Мориса Тореза ТЦ "Рентал"
  • Рядом остановка общественного транспорта
  • Наличие парковочных мест
  • Высокий пешеходный и автомобильный трафик
  • Первый этаж
  • Общая площадь 20,9 кв.м
  • Свободная планировка
  • Высота потолка 3,0 м
  • Помещение с ремонтом
  • Коммунальные платежи включены в арендную ставку

Вам понравилось помещение и хотите его посмотреть? Звоните!

Сведения о недвижимости
ID 1657
Коммунальные услуги включены Да
Тип здания Торговый центр
Тип парковки На улице
Вход cian (avito) Общий с улицы
Отделка помещения коммерческая Офисная
Залог (avito) 1 месяц
Ремонт коммерческая с отделкой
Тип коммерческой Торговое помещение
Площадь, кв.м. 20.9
Этаж 1
Этажность 3
Высота потолков м. 3
Отопление - коммерческая avito Центральное
Стоимость 52 250 руб.
Вся недвижимость
Стоимость - 52 250 руб.
Цена кв.м. - 2 500 руб.

Похожие предложения


ID 17335
105 000
Торговое помещение, 30 м² Малыгина 90
ID 17334
49 200
Офисное помещение 49,2м2 ул. Герцена 103
ID 17333
80 380
Помещение свободного назначения 80,36м2 ул.Петра Ершова 12
ID 17331
79 800
Помещение свободного назначения 36,33м2 ул.Арктическая 12